Maison neuve à
Couilly-Pont-aux-Dames (77860) Référence : SS2375963_1

Prix du projet : Maison avec Terrain

prix 375 000 €

  • 6 pièces
  • 4 chambres
  • Surface maison 105 m2

Contactez Stéphanie SEBAG de l'agence Maisons Evolution de Mareuil-lès-Meaux au 06.45.49.40.63 pour avoir plus d'informations sur ce projet.
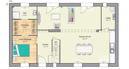
Découvrez cette jolie maison traditionnelle de 105 m² habitables idéalement située sur la commune de COUILLY-PONT-AUX-DAMES
Elle est composée de 4 chambres dont une suite parentale avec dressing et salle d'eau, d'une seconde salle de bains, de deux WC et d'un salon-séjour traversant lumineux avec une cuisine ouverte donnant sur un cellier.
Les plans sont modifiables selon vos souhaits, en agence ou visioconférence. Nous vous proposons un véritable accompagnement de qualité tout au long de votre projet.
Dessinons ensemble votre future maison !
Tel: 06.45.49.40.63

Annonce proposée par un Agent Commercial Partenaire.

Mentions légales

Terrain proposé par un partenaire foncier selon disponibilités et autorisation de publicité au prix de 180 000 €. Hors droit d'enregistrement et frais de notaire. Terrain + Maison proposés au prix de 195 000 € (Hors branchements et raccordements, papiers peints, peintures, revêtement de sol dans les chambres. Tarif modifiable sans préavis). Etiquette énergie : A. Différents modèles disponibles pour ce terrain. Assurances et garanties du constructeur (RC professionnelle, décennale, dommage ouvrage, garantie de remboursement de l'acompte, livraison à prix et délai convenu) : https://www.maisonsevolution.fr/mentions-legales/.

Contactez l'agence de Mareuil-lès-Meaux

06 22 93 94 71

    * Champs obligatoires

    Vos informations sont traitées par HEXAOM et transmises à un conseiller commercial qui vous contactera afin de répondre à votre demande. Les plans et images présentés sur notre site sont la propriété d’HEXAOM et ne peuvent pas être reproduits sans son accord. Pour retrouver notre politique de protection des données personnelles et exercer vos droits conformément à la « loi informatique et liberté » cliquez-ici.