Maison neuve à
Cormeilles-en-Parisis (95240) Référence : CB2357948_3

Prix du projet : Maison avec Terrain

prix 519 500 €

  • 4 pièces
  • 3 chambres
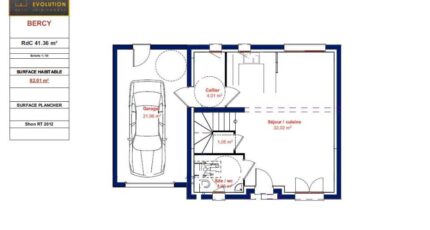
  • Surface maison 82 m2

CORMEILLES-EN-PARISIS (95240) - Maison familiale 4 pièces (82 m²) sur terrain de 450 m²

EMPLACEMENT PRIVILÉGIÉ A 7MIN A PIED DE LA GARE - MAISON NEUVE SUR-MESURE PAR MAISONS EVOLUTION

À seulement 15 minutes de Paris avec le Transilien J et à deux pas de la gare de Cormeilles-en-Parisis, Maisons Evolution Cormeilles-en-Parisis vous propose ce projet de maison familiale sur-mesure de 82 m², à implanter sur un terrain plat, clos et viabilisé de 450 m², au sein d'un quartier résidentiel calme et très recherché.

Pensée pour la vie de famille, cette maison à 2 niveaux peut inclure :

3 chambres fonctionnelles, idéales pour enfants ou invités
Une pièce de vie lumineuse et conviviale, ouverte sur le jardin
Une cuisine aménageable sur-mesure, selon vos besoins
2 salles de bains et des rangements optimisés pour le confort quotidien

Un cadre de vie idéal pour les familles :
Écoles de la maternelle au lycée à moins de 10 minutes à pied
Commerces et services à proximité : boulangeries, supermarché, boucherie-charcuterie, bureau de poste
Loisirs et équipements sportifs : tennis, bibliothèque
Marché Avenue Berteaux chaque samedi matin

Quartier résidentiel sûr, calme et parfait pour élever des enfants

Prix du projet : 519 500 € (terrain + maison sur-mesure).

Pour toute information sur la maison, le terrain ou les options de construction sur-mesure, contactez :
Caroline BETHERY - O6 26 57 38 84

Maisons Evolution Cormeilles-en-Parisis vous accompagne à chaque étape pour bâtir la maison familiale qui vous ressemble.

Mentions légales

Terrain proposé par un partenaire foncier selon disponibilités et autorisation de publicité au prix de 349 900 €. Hors droit d'enregistrement et frais de notaire. Terrain + Maison proposés au prix de 169 600 € (Hors branchements et raccordements, papiers peints, peintures, revêtement de sol dans les chambres. Tarif modifiable sans préavis). Etiquette énergie : A. Différents modèles disponibles pour ce terrain. Assurances et garanties du constructeur (RC professionnelle, décennale, dommage ouvrage, garantie de remboursement de l'acompte, livraison à prix et délai convenu) : https://www.maisonsevolution.fr/mentions-legales/.

Contactez l'agence de Cormeilles-en-Parisis

01 34 18 18 36

    * Champs obligatoires

    Vos informations sont traitées par HEXAOM et transmises à un conseiller commercial qui vous contactera afin de répondre à votre demande. Les plans et images présentés sur notre site sont la propriété d’HEXAOM et ne peuvent pas être reproduits sans son accord. Pour retrouver notre politique de protection des données personnelles et exercer vos droits conformément à la « loi informatique et liberté » cliquez-ici.