Maison neuve à
Conflans-Sainte-Honorine (78700) Référence : CB2341535_1

Prix du projet : Maison avec Terrain

prix 544 900 €

  • 6 pièces
  • 5 chambres
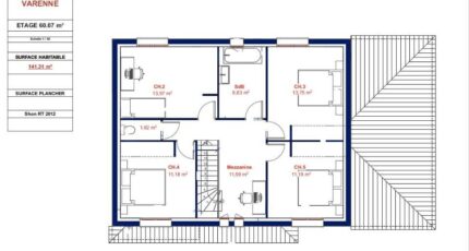
  • Surface maison 141 m2

🏡 Maison familiale neuve 6 pièces - 141 m² à Conflans-Sainte-Honorine

Spacieuse, lumineuse et idéale pour votre famille

À Conflans-Sainte-Honorine (78700), Maisons Evolution Cormeilles-en-Parisis vous présente cette maison neuve de 6 pièces de 141 m², implantée sur un grand terrain de 680 m² dans un secteur recherché, parfait pour accueillir toute la famille.

✨ Caractéristiques de la maison

5 chambres, pour offrir à chacun son espace personnel
2 salles de bains, pratiques pour la vie quotidienne
Cuisine à aménager selon vos envies
Maison neuve sur 2 niveaux, moderne, confortable et fonctionnelle

Terrain spacieux de 680 m², idéal pour un jardin, une terrasse ou des aménagements extérieurs

📍 Un cadre de vie pratique et agréable

Écoles à moins de 10 minutes à pied : maternelle, élémentaire, lycée
Structures d'accueil pour la petite enfance à proximité
Transports en commun accessibles à quelques minutes, facilitant vos déplacements quotidiens
Commerces et services variés : boulangeries, boucheries-charcuteries, supermarché, supérettes, tennis, bibliothèque...

💶 Prix de vente : 544 900 €
Un excellent compromis entre espace, confort et emplacement pour une vie familiale sereine.

📞 Pour en savoir plus et organiser une visite : Caroline BETHERY - O6 26 57 38 84
Notre équipe vous accompagne dans toutes les démarches et à chaque étape de votre projet.

🔨 Maisons Evolution - Cormeilles-en-Parisis
Construisez la maison qui correspond à votre famille, avec un accompagnement complet et personnalisé.

Mentions légales

Terrain proposé par un partenaire foncier selon disponibilités et autorisation de publicité au prix de 275 000 €. Hors droit d'enregistrement et frais de notaire. Maison proposée, avec un contrat de construction de maison individuelle, dans le cadre de la loi du 19/12/1990, au prix de 269 900 € (Hors branchements et raccordements, papiers peints, peintures, revêtement de sol dans les chambres, qui sont chiffrés dans les travaux qui restent à charge du client. Tarif modifiable sans préavis). Étiquette énergie : A. Différents modèles disponibles pour ce terrain. Assurances et garanties du constructeur comprises (RC professionnelle, décennale, dommage ouvrage).

Contactez l'agence de Cormeilles-en-Parisis

01 34 18 18 36

    * Champs obligatoires

    Vos informations sont traitées par HEXAOM et transmises à un conseiller commercial qui vous contactera afin de répondre à votre demande. Les plans et images présentés sur notre site sont la propriété d’HEXAOM et ne peuvent pas être reproduits sans son accord. Pour retrouver notre politique de protection des données personnelles et exercer vos droits conformément à la « loi informatique et liberté » cliquez-ici.