Maison neuve à
Claye-Souilly (77410) Référence : SS2311626_5

Prix du projet : Maison avec Terrain

prix 437 000 €

  • 6 pièces
  • 4 chambres
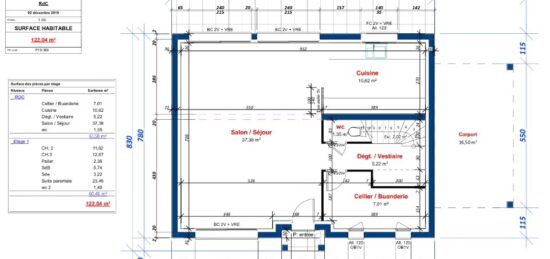
  • Surface maison 89 m2

VENTE d'une maison T6 (89 m²) à Claye-Souilly
EMPLACEMENT PRIVILÉGIÉ - MAISON 6 PIÈCES NEUVE
À quelques minutes de la gare de Mitry-Claye (Paris à 25 min avec le Transilien K), venez découvrir cette maison de 6 pièces de 89 m² à vendre bénéficiant d'un emplacement d'exception dans Claye-Souilly (77410).
Cette maison comporte 2 niveaux. Son intérieur dispose de quatre chambres, d'une cuisine et d'une salle de bains. Cette maison est neuve.
Le terrain du bien est de 1 324 m².
La propriété se situe dans un secteur convoité. Il y a plusieurs établissements scolaires (maternelle, élémentaire et collège) à moins de 10 minutes à pied. Niveau transports en commun, on trouve la ligne de RER B (Mitry-Claye) ainsi que huit gares à moins de 10 minutes en voiture. On trouve un bassin de natation, un tennis, une boulangerie, des commerces, une épicerie, un bureau de poste et deux boucheries-charcuteries à proximité. Enfin, le marché Place de Gaulle anime le quartier.
Son prix de vente est de 437 000 €.
Contactez notre agence (SEBAG Stephanie : 06-45-49-40-63) pour tout renseignement sur la maison, sur les démarches à suivre ou sur les modalités de vente. Concrétisez vos projets immobiliers avec Maisons Evolution Mareuil-lès-Meaux.

Annonce proposée par un Agent Commercial Partenaire.

Mentions légales

Terrain proposé par un partenaire foncier selon disponibilités et autorisation de publicité au prix de 287 000 €. Hors droit d'enregistrement et frais de notaire. Maison proposée, avec un contrat de construction de maison individuelle, dans le cadre de la loi du 19/12/1990, au prix de 150 000 € (Hors branchements et raccordements, papiers peints, peintures, revêtement de sol dans les chambres, qui sont chiffrés dans les travaux qui restent à charge du client. Tarif modifiable sans préavis). Étiquette énergie : A. Différents modèles disponibles pour ce terrain. Assurances et garanties du constructeur comprises (RC professionnelle, décennale, dommage ouvrage).

Contactez l'agence de Mareuil-lès-Meaux

06 22 93 94 71

    * Champs obligatoires

    Vos informations sont traitées par HEXAOM et transmises à un conseiller commercial qui vous contactera afin de répondre à votre demande. Les plans et images présentés sur notre site sont la propriété d’HEXAOM et ne peuvent pas être reproduits sans son accord. Pour retrouver notre politique de protection des données personnelles et exercer vos droits conformément à la « loi informatique et liberté » cliquez-ici.