Maison neuve à
Claye-Souilly (77410) Référence : SS2311626_4

Prix du projet : Maison avec Terrain

prix 477 000 €

  • 6 pièces
  • 4 chambres
  • Surface maison 105 m2

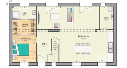
Maison T6 (105 m²) en vente à Claye-Souilly
EMPLACEMENT PRIVILÉGIÉ - MAISON 6 PIÈCES NEUVE
Proche de la gare de Mitry-Claye (Paris à 25 min avec le Transilien K), à vendre bénéficiant d'un emplacement d'exception dans Claye-Souilly (77410), nous vous présentons cette maison de 6 pièces de 105 m².
Cette maison comporte 2 niveaux. Son intérieur se divise en quatre chambres, une cuisine et deux salles de bains. Cette maison est neuve.
Le terrain du bien s'étend sur 1 324 m².
Le bien se trouve dans un quartier recherché. Plusieurs écoles (maternelle, élémentaire et collège) sont implantées à moins de 10 minutes à pied. Côté transports, on trouve la ligne de RER B (Mitry-Claye) ainsi que huit gares à moins de 10 minutes en voiture. Il y a un bassin de natation, un tennis, une boulangerie, des commerces, une supérette, deux boucheries-charcuteries et un bureau de poste dans les environs. Le marché Place de Gaulle anime les environs.
Il est à vendre pour la somme de 477 000 €.
N'hésitez pas à prendre contact avec Stephanie SEBAG (06-45-49-40-63) pour toute information sur la maison ou sur les démarches à suivre. Maisons Evolution Mareuil-lès-Meaux vous accompagne à toutes les étapes de l'achat et dans tous vos projets immobiliers.

Annonce proposée par un Agent Commercial Partenaire.

Mentions légales

Terrain proposé par un partenaire foncier selon disponibilités et autorisation de publicité au prix de 287 000 €. Hors droit d'enregistrement et frais de notaire. Maison proposée, avec un contrat de construction de maison individuelle, dans le cadre de la loi du 19/12/1990, au prix de 190 000 € (Hors branchements et raccordements, papiers peints, peintures, revêtement de sol dans les chambres, qui sont chiffrés dans les travaux qui restent à charge du client. Tarif modifiable sans préavis). Étiquette énergie : A. Différents modèles disponibles pour ce terrain. Assurances et garanties du constructeur comprises (RC professionnelle, décennale, dommage ouvrage).

Contactez l'agence de Mareuil-lès-Meaux

06 22 93 94 71

    * Champs obligatoires

    Vos informations sont traitées par HEXAOM et transmises à un conseiller commercial qui vous contactera afin de répondre à votre demande. Les plans et images présentés sur notre site sont la propriété d’HEXAOM et ne peuvent pas être reproduits sans son accord. Pour retrouver notre politique de protection des données personnelles et exercer vos droits conformément à la « loi informatique et liberté » cliquez-ici.