Maison neuve à
Claye-Souilly (77410) Référence : SS2311626_3

Prix du projet : Maison avec Terrain

prix 477 000 €

  • 6 pièces
  • 5 chambres
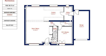
  • Surface maison 121 m2

Maison F6 (121 m²) à vendre à Claye-Souilly
EMPLACEMENT PRIVILÉGIÉ - MAISON 6 PIÈCES NEUVE
À proximité de la gare de Mitry-Claye (Paris à 25 min par le Transilien K), nous vous présentons cette maison de 6 pièces de 121 m² et de 1 324 m² de terrain bénéficiant d'un emplacement d'exception dans Claye-Souilly (77410).
C'est une maison de 2 niveaux. Son intérieur inclut cinq chambres, une cuisine et deux salles de bains. La maison est neuve.
La maison est située dans un quartier prisé. Plusieurs établissements scolaires (maternelle, élémentaire et collège) se trouvent à moins de 10 minutes à pied. Niveau transports, il y a la ligne de RER B (Mitry-Claye) ainsi que huit gares à moins de 10 minutes en voiture. On trouve un bassin de natation, un tennis, une boulangerie, des commerces, une épicerie, un bureau de poste et une supérette à proximité. Le marché Place de Gaulle anime les environs.
Elle est à vendre pour la somme de 477 000 €.
Prenez contact avec notre agence (SEBAG Stephanie : 06-45-49-40-63) pour toute question sur la maison, sur les démarches à suivre ou sur les modalités de vente. Maisons Evolution Mareuil-lès-Meaux vous accompagne à toutes les étapes de l'achat et dans tous vos projets immobiliers.

Annonce proposée par un Agent Commercial Partenaire.

Mentions légales

Terrain proposé par un partenaire foncier selon disponibilités et autorisation de publicité au prix de 287 000 €. Hors droit d'enregistrement et frais de notaire. Maison proposée, avec un contrat de construction de maison individuelle, dans le cadre de la loi du 19/12/1990, au prix de 190 000 € (Hors branchements et raccordements, papiers peints, peintures, revêtement de sol dans les chambres, qui sont chiffrés dans les travaux qui restent à charge du client. Tarif modifiable sans préavis). Étiquette énergie : A. Différents modèles disponibles pour ce terrain. Assurances et garanties du constructeur comprises (RC professionnelle, décennale, dommage ouvrage).

Contactez l'agence de Mareuil-lès-Meaux

06 22 93 94 71

    * Champs obligatoires

    Vos informations sont traitées par HEXAOM et transmises à un conseiller commercial qui vous contactera afin de répondre à votre demande. Les plans et images présentés sur notre site sont la propriété d’HEXAOM et ne peuvent pas être reproduits sans son accord. Pour retrouver notre politique de protection des données personnelles et exercer vos droits conformément à la « loi informatique et liberté » cliquez-ici.