Maison neuve à
Chaumont-en-Vexin (60240) Référence : CB2395233_2

Prix du projet : Maison avec Terrain

prix 269 500 €

  • 5 pièces
  • 3 chambres
  • Surface maison 90 m2

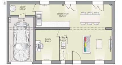
Projet de construction - Maison individuelle F5 sur mesure à Chaumont-en-Vexin (60240)

Terrain de 660 m² - Lotissement recherché - Proche gare
Derniers lots disponibles

Maisons Evolution Cormeilles-en-Parisis vous propose de réaliser votre maison individuelle neuve sur mesure sur ce terrain de 660 m², situé dans un quartier calme et prisé de Chaumont-en-Vexin, à seulement quelques minutes de la gare (Paris en 1h par le Transilien J).

🏡 Votre maison personnalisable

Projet de maison F5 d'environ 90 m² habitables sur 2 niveaux
5 pièces, dont 3 chambres, cuisine et 1 salle de bains
Agencement et prestations entièrement personnalisables selon vos besoins et votre style
Construction conforme aux normes RE 2020, garantissant confort, luminosité et performance énergétique

🌿 Un terrain et un cadre de vie idéal
Terrain de 660 m², au sein d'un lotissement verdoyant
Cadre parfait pour les familles et les enfants
Proche des écoles : École Maternelle et Élémentaire
Collège à moins de 10 min à pied
Commerces et services accessibles à pied : boulangerie, supermarchés, boucherie-charcuterie, épicerie

🚆 Accessibilité
Gare de Chaumont-en-Vexin à proximité immédiate - Paris accessible en 1h
Accès rapide à la Nationale N31

💰 Prix indicatif du projet : 269 500 €
(terrain + maison - hors frais annexes)

Maisons Evolution Cormeilles-en-Parisis vous accompagne à toutes les étapes : étude personnalisée, démarches administratives, financement et suivi complet de la construction de votre maison.

📞 Contactez Caroline BETHERY - O6 26 57 38 84
pour plus d'informations ou pour démarrer votre projet immobilier.

Mentions légales

Terrain proposé par un partenaire foncier selon disponibilités et autorisation de publicité au prix de 75 900 €. Hors droit d'enregistrement et frais de notaire. Terrain + Maison proposés au prix de 269 500 € (Hors branchements et raccordements, papiers peints, peintures, revêtement de sol dans les chambres. Tarif modifiable sans préavis). Etiquette énergie : A. Différents modèles disponibles pour ce terrain. Assurances et garanties du constructeur (RC professionnelle, décennale, dommage ouvrage, garantie de remboursement de l'acompte, livraison à prix et délai convenu) : https://www.maisonsevolution.fr/mentions-legales/.

Contactez l'agence de Cormeilles-en-Parisis

01 34 18 18 36

    * Champs obligatoires

    Vos informations sont traitées par HEXAOM et transmises à un conseiller commercial qui vous contactera afin de répondre à votre demande. Les plans et images présentés sur notre site sont la propriété d’HEXAOM et ne peuvent pas être reproduits sans son accord. Pour retrouver notre politique de protection des données personnelles et exercer vos droits conformément à la « loi informatique et liberté » cliquez-ici.