Maison neuve à
Châtres (77610) Référence : SS2293559_3

Prix du projet : Maison avec Terrain

prix 389 000 €

  • 6 pièces
  • 4 chambres
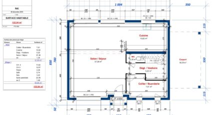
  • Surface maison 122 m2

Châtres : maison F6 (122 m²) à vendre
EMPLACEMENT PRIVILÉGIÉ - MAISON 6 PIÈCES NEUVE
Au pied de la station Tournan du RER E (40 min de Paris), nous sommes heureux de vous proposer cette maison de 6 pièces de 122 m² et de 585 m² de terrain en vente bénéficiant d'un emplacement d'exception dans Châtres (77610).
C'est une maison de 2 niveaux. Son intérieur compte quatre chambres, une cuisine et deux salles de bains. La maison est neuve.
La maison se situe dans un quartier attractif. Il y a l'École Primaire Robert Fery à moins de 10 minutes à pied. Côté transports en commun, on trouve la ligne de RER E (Tournan) ainsi que quatre gares à moins de 10 minutes en voiture.
Elle est proposée à l'achat pour 389 000 €.
Contactez notre agence (Stephanie SEBAG : 06-45-49-40-63) pour plus de renseignements sur le bien. Donnez vie à vos projets immobiliers avec Maisons Evolution Mareuil-lès-Meaux.

Annonce proposée par un Agent Commercial Partenaire.

Mentions légales

Terrain proposé par un partenaire foncier selon disponibilités et autorisation de publicité au prix de 169 000 €. Hors droit d'enregistrement et frais de notaire. Terrain + Maison proposés au prix de 220 000 € (Hors branchements et raccordements, papiers peints, peintures, revêtement de sol dans les chambres. Tarif modifiable sans préavis). Etiquette énergie : A. Différents modèles disponibles pour ce terrain. Assurances et garanties du constructeur (RC professionnelle, décennale, dommage ouvrage, garantie de remboursement de l'acompte, livraison à prix et délai convenu) : https://www.maisonsevolution.fr/mentions-legales/.

Contactez l'agence de Mareuil-lès-Meaux

06 22 93 94 71

    * Champs obligatoires

    Vos informations sont traitées par HEXAOM et transmises à un conseiller commercial qui vous contactera afin de répondre à votre demande. Les plans et images présentés sur notre site sont la propriété d’HEXAOM et ne peuvent pas être reproduits sans son accord. Pour retrouver notre politique de protection des données personnelles et exercer vos droits conformément à la « loi informatique et liberté » cliquez-ici.