Maison neuve à
Châtres (77610) Référence : SS2293457_4

Prix du projet : Maison avec Terrain

prix 351 900 €

  • 6 pièces
  • 5 chambres
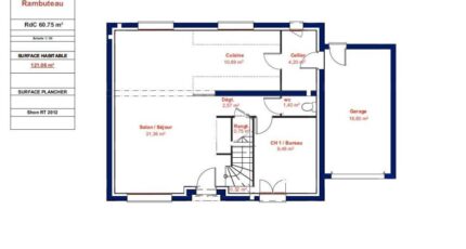
  • Surface maison 121 m2

VENTE d'une maison F6 (121 m²) à Châtres
IDÉALEMENT SITUÉE - MAISON 6 PIÈCES NEUVE
En vente : à côté du RER E (station Tournan, 40 min de Paris), notre agence Maisons Evolution Mareuil-lès-Meaux est heureuse de vous proposer cette maison de 6 pièces de 121 m² idéalement située dans Châtres (77610). Elle offre cinq chambres, une cuisine et deux salles de bains.
Le terrain du bien s'étend sur 601 m².
Cette maison comporte 2 niveaux. Elle est neuve.
Cette maison se situe dans un secteur convoité. L'École Primaire Robert Fery se trouve à moins de 10 minutes à pied. Niveau transports, il y a la ligne de RER E (Tournan) ainsi que quatre gares à moins de 10 minutes en voiture.
Son prix de vente est de 351 900 €.
Prenez contact avec notre constructeur (Stephanie SEBAG : 06-45-49-40-63) pour toute information sur la maison. Faites de vos projets immobiliers une réalité avec Maisons Evolution Mareuil-lès-Meaux.

Annonce proposée par un Agent Commercial Partenaire.

Mentions légales

Terrain proposé par un partenaire foncier selon disponibilités et autorisation de publicité au prix de 171 000 €. Hors droit d'enregistrement et frais de notaire. Terrain + Maison proposés au prix de 180 900 € (Hors branchements et raccordements, papiers peints, peintures, revêtement de sol dans les chambres. Tarif modifiable sans préavis). Etiquette énergie : A. Différents modèles disponibles pour ce terrain. Assurances et garanties du constructeur (RC professionnelle, décennale, dommage ouvrage, garantie de remboursement de l'acompte, livraison à prix et délai convenu) : https://www.maisonsevolution.fr/mentions-legales/.

Contactez l'agence de Mareuil-lès-Meaux

06 22 93 94 71

    * Champs obligatoires

    Vos informations sont traitées par HEXAOM et transmises à un conseiller commercial qui vous contactera afin de répondre à votre demande. Les plans et images présentés sur notre site sont la propriété d’HEXAOM et ne peuvent pas être reproduits sans son accord. Pour retrouver notre politique de protection des données personnelles et exercer vos droits conformément à la « loi informatique et liberté » cliquez-ici.