Maison neuve à
Charmentray
(77410)
Référence :
SS2311774_6
Prix du projet : Maison avec Terrain
prix 434 000 €
- 6 pièces
- 5 chambres
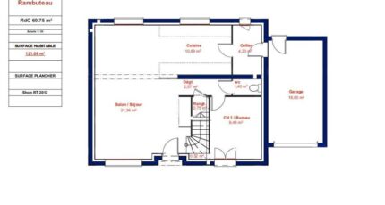
- Surface maison 121 m2
Charmentray : maison de 6 pièces (121 m²) en vente
EMPLACEMENT PRIVILÉGIÉ - MAISON 6 PIÈCES NEUVE
À côté de la gare d'Esbly (Paris à 30 min par le Transilien P), découvrez à vendre, bénéficiant d'un emplacement privilégié dans Charmentray (77410), cette maison de 6 pièces de 121 m².
Cette maison comporte 2 niveaux. Elle propose cinq chambres, une cuisine et deux salles de bains. La maison est neuve.
Le terrain du bien est de 539 m².
Cette maison est située dans un secteur recherché. Une école élémentaire y est implantée. Niveau transports en commun, il y a la station de RER Chessy-Marne-La-Vallée (ligne A) ainsi que huit gares à moins de 10 minutes en voiture.
Son prix de vente est de 434 000 €.
Contactez Stephanie SEBAG (06-45-49-40-63) pour tout renseignement sur la propriété ou sur les démarches à suivre. Maisons Evolution Mareuil-lès-Meaux vous accompagne à toutes les étapes de l'achat et dans tous vos projets immobiliers.
Annonce proposée par un Agent Commercial Partenaire.
Mentions légales
Terrain proposé par un partenaire foncier selon disponibilités et autorisation de publicité au prix de 159 000 €. Hors droit d'enregistrement et frais de notaire. Maison proposée, avec un contrat de construction de maison individuelle, dans le cadre de la loi du 19/12/1990, au prix de 275 000 € (Hors branchements et raccordements, papiers peints, peintures, revêtement de sol dans les chambres, qui sont chiffrés dans les travaux qui restent à charge du client. Tarif modifiable sans préavis). Étiquette énergie : A. Différents modèles disponibles pour ce terrain. Assurances et garanties du constructeur comprises (RC professionnelle, décennale, dommage ouvrage).Agence Maisons Evolution de Mareuil-lès-Meaux (77100)
- Téléphone :
- 06 22 93 94 71
- Adressse :
-
1 Rue Pierre de Ronsard
77100 Mareuil-lès-Meaux, France