Maison neuve à
Chailly-en-Brie (77120) Référence : SS2310125_5

Prix du projet : Maison avec Terrain

prix 263 000 €

  • 5 pièces
  • 3 chambres
  • Surface maison 90 m2

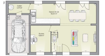
VENTE : maison T5 (90 m²) à Chailly-en-Brie
IDÉALEMENT SITUÉE - MAISON 5 PIÈCES NEUVE
Au pied du Transilien P (gare de Coulommiers, 1 h de Paris), nous vous proposons cette maison de 5 pièces de 90 m² à vendre idéalement située dans Chailly-en-Brie (77120).
Cette maison comporte 2 niveaux. Elle se divise en trois chambres, une cuisine et une salle de bains. La maison est neuve.
Le terrain de la propriété est de 409 m².
Cette maison est située dans un quartier attractif. L'École Primaire Geoffroy Saint-Hilaire est implantée à moins de 10 minutes à pied. Côté transports en commun, il y a les gares Coulommiers, Mouroux et Faremoutiers-Pommeuse à moins de 10 minutes en voiture. Il y a un tennis dans les environs.
Son prix de vente est de 263 000 €.
N'hésitez pas à prendre contact avec Stephanie SEBAG (tél : 06-45-49-40-63) pour obtenir de plus amples renseignements sur la maison ou sur les démarches à suivre. Concrétisez vos projets immobiliers avec Maisons Evolution Mareuil-lès-Meaux.

Annonce proposée par un Agent Commercial Partenaire.

Mentions légales

Terrain proposé par un partenaire foncier selon disponibilités et autorisation de publicité au prix de 98 000 €. Hors droit d'enregistrement et frais de notaire. Terrain + Maison proposés au prix de 165 000 € (Hors branchements et raccordements, papiers peints, peintures, revêtement de sol dans les chambres. Tarif modifiable sans préavis). Etiquette énergie : A. Différents modèles disponibles pour ce terrain. Assurances et garanties du constructeur (RC professionnelle, décennale, dommage ouvrage, garantie de remboursement de l'acompte, livraison à prix et délai convenu) : https://www.maisonsevolution.fr/mentions-legales/.

Contactez l'agence de Mareuil-lès-Meaux

06 22 93 94 71

    * Champs obligatoires

    Vos informations sont traitées par HEXAOM et transmises à un conseiller commercial qui vous contactera afin de répondre à votre demande. Les plans et images présentés sur notre site sont la propriété d’HEXAOM et ne peuvent pas être reproduits sans son accord. Pour retrouver notre politique de protection des données personnelles et exercer vos droits conformément à la « loi informatique et liberté » cliquez-ici.