Maison neuve à
Carrières-sur-Seine (78420) Référence : CB2352286_3

Prix du projet : Maison avec Terrain

prix 724 000 €

  • 6 pièces
  • 5 chambres
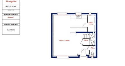
  • Surface maison 120 m2

Maison contemporaine neuve - 6 pièces - 120 m² personnalisables
Carrières-sur-Seine (78420) - À 10 min à pied du RER A

À Carrières-sur-Seine, dans un quartier résidentiel prisé à proximité immédiate de Paris, découvrez ce projet de maison individuelle neuve de 120 m², conçu pour offrir un cadre de vie moderne, lumineux et entièrement personnalisable selon vos envies.

Implantée sur un terrain de 250 m², cette maison propose 5 chambres, une cuisine modulable, ainsi que 2 salles de bains. Répartie sur deux niveaux, elle offre un espace de vie idéal pour une famille recherchant confort, standing et personnalisation.

Un emplacement exceptionnel pour un quotidien premium

Située à seulement 10 minutes à pied de la gare RER A Houilles-Carrières-sur-Seine, et à proximité du Transilien J (Paris Saint-Lazare en 10 minutes), cette adresse est parfaite pour conjuguer sérénité résidentielle et mobilité haut de gamme.

Dans un rayon de quelques minutes à pied :
Écoles de la maternelle au lycée
Deux crèches
Commerces : boulangeries, supermarché, épiceries, poste
Tennis, infrastructures de loisirs
Marché local animé chaque mardi matin

Un cadre idéal pour une vie familiale confortable, dans l'une des communes les plus recherchées des Yvelines proches de Paris.

Un projet sur-mesure accompagné par des experts
Maisons Evolution Cormeilles-en-Parisis vous accompagne dans la création d'une maison haut de gamme à votre image :
Architecture personnalisée
Choix des matériaux, finitions et agencements
Optimisation des volumes et de la luminosité
Suivi complet, de la conception à la remise des clés

Prix : 724 000 €

Pour en savoir plus sur ce projet d'exception et les démarches à suivre, contactez :
Caroline BETHERY - O6 26 57 38 84

Mentions légales

Terrain proposé par un partenaire foncier selon disponibilités et autorisation de publicité au prix de 440 000 €. Hors droit d'enregistrement et frais de notaire. Terrain + Maison proposés au prix de 284 000 € (Hors branchements et raccordements, papiers peints, peintures, revêtement de sol dans les chambres. Tarif modifiable sans préavis). Etiquette énergie : A. Différents modèles disponibles pour ce terrain. Assurances et garanties du constructeur (RC professionnelle, décennale, dommage ouvrage, garantie de remboursement de l'acompte, livraison à prix et délai convenu) : https://www.maisonsevolution.fr/mentions-legales/.

Contactez l'agence de Cormeilles-en-Parisis

01 34 18 18 36

    * Champs obligatoires

    Vos informations sont traitées par HEXAOM et transmises à un conseiller commercial qui vous contactera afin de répondre à votre demande. Les plans et images présentés sur notre site sont la propriété d’HEXAOM et ne peuvent pas être reproduits sans son accord. Pour retrouver notre politique de protection des données personnelles et exercer vos droits conformément à la « loi informatique et liberté » cliquez-ici.