Maison neuve à
Bû (28410) Référence : RC2309010_5

Prix du projet : Maison avec Terrain

prix 353 600 €

  • 6 pièces
  • 5 chambres
  • Surface maison 114 m2

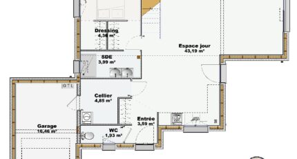
La maison Canopée 120 est une spacieuse habitation à étage, conçue avec une ossature bois, offrant une surface habitable totale de 120,40 m². Son plan intègre un garage et une suite parentale au rez-de-chaussée, assurant confort et praticité.
Au rez-de-chaussée, la maison propose un vaste espace jour de 43,19 m², idéal pour la vie de famille et les réceptions. On y trouve également une suite parentale complète (chambre de 8,15 m², dressing de 4,36 m² et salle d'eau de 3,99 m²), ainsi qu'un WC (1,93 m²), un cellier (4,85 m²), une entrée (3,59 m²) et un garage intégré de 16,46 m².
L'étage est dédié aux espaces de repos, avec quatre chambres confortables (10,80 m², 10,38 m², 9,92 m² et 10,07 m²), une salle d'eau (4,44 m²), un WC (1,65 m²) et un dégagement (2,73 m²).
La construction en ossature bois de la Canopée 120 lui confère de nombreux avantages : elle assure une isolation thermique et phonique de très haute performance, ce qui se traduit par des économies d'énergie significatives et un confort intérieur optimal. L'utilisation du bois, un matériau renouvelable et peu énergivore en production, en fait un choix écologique qui réduit l'empreinte carbone de l'habitat. De plus, la rapidité de mise en oeuvre et l'ambiance saine qu'offre le bois sont des atouts indéniables pour cette maison familiale et fonctionnelle.

Annonce proposée par un Agent Commercial Partenaire.

Mentions légales

Terrain proposé par un partenaire foncier selon disponibilités et autorisation de publicité au prix de 95 900 €. Hors droit d'enregistrement et frais de notaire. Maison proposée, avec un contrat de construction de maison individuelle, dans le cadre de la loi du 19/12/1990, au prix de 257 700 € (Hors branchements et raccordements, papiers peints, peintures, revêtement de sol dans les chambres, qui sont chiffrés dans les travaux qui restent à charge du client. Tarif modifiable sans préavis). Étiquette énergie : A. Différents modèles disponibles pour ce terrain. Assurances et garanties du constructeur comprises (RC professionnelle, décennale, dommage ouvrage).

Contactez l'agence de Coignières

01 34 61 42 52

    * Champs obligatoires

    Vos informations sont traitées par HEXAOM et transmises à un conseiller commercial qui vous contactera afin de répondre à votre demande. Les plans et images présentés sur notre site sont la propriété d’HEXAOM et ne peuvent pas être reproduits sans son accord. Pour retrouver notre politique de protection des données personnelles et exercer vos droits conformément à la « loi informatique et liberté » cliquez-ici.