Maison neuve à
Boullay-les-Troux (91470) Référence : JCL2453532_1-2

Prix du projet : Maison avec Terrain

prix 389 000 €

  • 6 pièces
  • 4 chambres
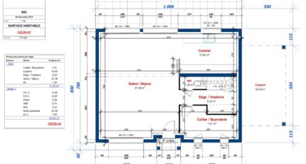
  • Surface maison 122 m2

« Je me baladais sur l'avenue, le coeur ouvert à l'inconnu... »
Ou le modèle CHAMPS ELYSEES est caractéristique de par son architecture toute en hauteur : des matériaux nobles, des volumes impressionnants mais surtout une configuration classique avec au rdc, une pièce à vivre de + de 40m², une entrée d'environ 5m² sur un vestibule dégageant de l'espace et offrant de la lumière dans toute la pièce.

La suite parentale de 25m² ainsi que les 2 autres chambres de 11m² environ chacune à l'étage s'articulent autour de 2 salles d'eau/bain et permettent ainsi de vivre en communauté, avec chacun son espace de vie.
En tout, 122m² à modeler selon ses goûts.

Les maîtres-mots de ce modèle : la modernité et l'unicité.

Annonce proposée par un Agent Commercial Partenaire.

Mentions légales

Terrain proposé par un partenaire foncier selon disponibilités et autorisation de publicité au prix de 169 000 €. Hors droit d'enregistrement et frais de notaire. Terrain + Maison proposés au prix de 389 000 € (Hors branchements et raccordements, papiers peints, peintures, revêtement de sol dans les chambres. Tarif modifiable sans préavis). Etiquette énergie : A. Différents modèles disponibles pour ce terrain. Assurances et garanties du constructeur (RC professionnelle, décennale, dommage ouvrage, garantie de remboursement de l'acompte, livraison à prix et délai convenu) : https://www.maisonsevolution.fr/mentions-legales/.

Contactez l'agence de Coignières

01 34 61 42 52

    * Champs obligatoires

    Vos informations sont traitées par HEXAOM et transmises à un conseiller commercial qui vous contactera afin de répondre à votre demande. Les plans et images présentés sur notre site sont la propriété d’HEXAOM et ne peuvent pas être reproduits sans son accord. Pour retrouver notre politique de protection des données personnelles et exercer vos droits conformément à la « loi informatique et liberté » cliquez-ici.