Maison neuve à
Beynes (78650) Référence : RC2442114_1

Prix du projet : Maison avec Terrain

prix 287 215 €

  • 4 pièces
  • 3 chambres
  • Surface maison 82 m2

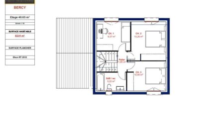
La Bercy est une maison en R+1 qui vous offre 84 m² de surface habitable répartis sur les deux niveaux.
Au rez-de-chaussée vous trouverez un beau séjour/cuisine d'environ 32 m² avec cellier attenant ainsi qu'une salle d'eau avec ses WC.
A l'étage vous pourrez découvrir le coin nuit qui se compose d'un pallier desservant les 3 chambres ainsi qu'une salle de bains avec WC.
Sa façade possède un jeu de couleur au niveau des enduits ainsi qu'un parement en brique qui souligne sa porte d'entrée.

Annonce proposée par un Agent Commercial Partenaire.

Mentions légales

Terrain proposé par un partenaire foncier selon disponibilités et autorisation de publicité au prix de 125 000 €. Hors droit d'enregistrement et frais de notaire. Terrain + Maison proposés au prix de 287 215 € (Hors branchements et raccordements, papiers peints, peintures, revêtement de sol dans les chambres. Tarif modifiable sans préavis). Etiquette énergie : A. Différents modèles disponibles pour ce terrain. Assurances et garanties du constructeur (RC professionnelle, décennale, dommage ouvrage, garantie de remboursement de l'acompte, livraison à prix et délai convenu) : https://www.maisonsevolution.fr/mentions-legales/.

Contactez l'agence de Coignières

01 34 61 42 52

    * Champs obligatoires

    Vos informations sont traitées par HEXAOM et transmises à un conseiller commercial qui vous contactera afin de répondre à votre demande. Les plans et images présentés sur notre site sont la propriété d’HEXAOM et ne peuvent pas être reproduits sans son accord. Pour retrouver notre politique de protection des données personnelles et exercer vos droits conformément à la « loi informatique et liberté » cliquez-ici.