Maison neuve à
Bazemont (78580) Référence : CB2322531_1

Prix du projet : Maison avec Terrain

prix 335 400 €

  • 5 pièces
  • 3 chambres
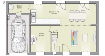
  • Surface maison 90 m2

🏡 BAZEMONT - MAISON 5 PIÈCES (90 m²) SUR TERRAIN DE 800 m²

Projet sur-mesure idéal primo-accédant avec Maisons Évolution

À Bazemont (78580), à proximité de la gare de Maule (Transilien N), saisissez l'opportunité de réaliser votre première maison familiale de 5 pièces, 90 m², sur un terrain de 800 m², offrant suffisamment d'espace pour un jardin et vos aménagements extérieurs.

Une maison pratique et fonctionnelle

3 chambres,

Cuisine ouverte et fonctionnelle,

Salle de bains,

2 niveaux lumineux,

Possibilité de personnaliser l'agencement et les finitions avec Maisons Évolution.

Un emplacement pratique

Quartier calme et attractif,

École primaire à proximité pour les familles,

Commerces et services accessibles à quelques minutes : tennis, bibliothèque, commerces,


Votre projet clé en main

Avec Maisons Évolution, bénéficiez :

D'une conception personnalisée adaptée à vos besoins et à votre budget,

D'un suivi complet du chantier jusqu'à la remise des clés,

D'une maison neuve pratique, fonctionnelle et prête à accueillir votre famille.

Prix du projet : 335 400 €
(Terrain + maison, hors frais annexes)

📞 Contact : Caroline BETHERY - O6 26 57 38 84
📍 Maisons Évolution - Agence de Cormeilles-en-Parisis

Un terrain idéal de 800 m² à Bazemont pour construire votre première maison familiale sur-mesure, pratique et accessible.

Mentions légales

Terrain proposé par un partenaire foncier selon disponibilités et autorisation de publicité au prix de 139 000 €. Hors droit d'enregistrement et frais de notaire. Maison proposée, avec un contrat de construction de maison individuelle, dans le cadre de la loi du 19/12/1990, au prix de 196 400 € (Hors branchements et raccordements, papiers peints, peintures, revêtement de sol dans les chambres, qui sont chiffrés dans les travaux qui restent à charge du client. Tarif modifiable sans préavis). Étiquette énergie : A. Différents modèles disponibles pour ce terrain. Assurances et garanties du constructeur comprises (RC professionnelle, décennale, dommage ouvrage).

Contactez l'agence de Cormeilles-en-Parisis

01 34 18 18 36

    * Champs obligatoires

    Vos informations sont traitées par HEXAOM et transmises à un conseiller commercial qui vous contactera afin de répondre à votre demande. Les plans et images présentés sur notre site sont la propriété d’HEXAOM et ne peuvent pas être reproduits sans son accord. Pour retrouver notre politique de protection des données personnelles et exercer vos droits conformément à la « loi informatique et liberté » cliquez-ici.