Maison neuve à
Valmondois (95760) Référence : CB2384031_1

Prix du projet : Maison avec Terrain

prix 437 200 €

  • 4 pièces
  • 3 chambres
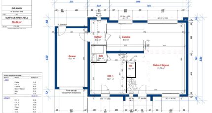
  • Surface maison 104 m2

Projet de construction - Maison F4 neuve à Auvers-sur-Oise

104 m² - 3 chambres - Terrain 850 m² - Maisons Evolution

Maisons Evolution Cormeilles-en-Parisis vous propose un projet de construction d'une maison neuve à étage, d'une surface habitable de 104 m², sur un terrain de 850 m², situé dans un quartier central et attractif d'Auvers-sur-Oise (95760).

🔹 Maison à construire - entièrement personnalisable selon vos besoins
🔹 Plans et prestations adaptables pour un projet sur-mesure

Le terrain présente ces caractéristiques :

Borné mais non viabilisé

Largeur : 32 m - Longueur : 24 m

Surface : 850 m²

Emplacement central, proche des commerces et services

Le projet inclut :

3 chambres confortables

Une pièce de vie lumineuse

Une cuisine fonctionnelle

1 salle de bains

Prestations modernes et de qualité, conformes à la RE 2020

Maisons Evolution vous garantit :
✔ Contrat de construction CCMI
✔ Garanties constructeur (décennale, dommage-ouvrage, livraison)
✔ Accompagnement complet, de l'étude du terrain à la remise des clés

💰 Prix du projet terrain + maison : 437 200 €
(Hors frais de notaire, viabilisation et annexes)

📞 Contact : Caroline BETHERY - O6 26 57 38 84
Faites de votre projet immobilier sur-mesure une réalité avec Maisons Evolution.

Mentions légales

Terrain proposé par un partenaire foncier selon disponibilités et autorisation de publicité au prix de 208 500 €. Hors droit d'enregistrement et frais de notaire. Terrain + Maison proposés au prix de 437 200 € (Hors branchements et raccordements, papiers peints, peintures, revêtement de sol dans les chambres. Tarif modifiable sans préavis). Etiquette énergie : A. Différents modèles disponibles pour ce terrain. Assurances et garanties du constructeur (RC professionnelle, décennale, dommage ouvrage, garantie de remboursement de l'acompte, livraison à prix et délai convenu) : https://www.maisonsevolution.fr/mentions-legales/.

Contactez l'agence de Cormeilles-en-Parisis

01 34 18 18 36

    * Champs obligatoires

    Vos informations sont traitées par HEXAOM et transmises à un conseiller commercial qui vous contactera afin de répondre à votre demande. Les plans et images présentés sur notre site sont la propriété d’HEXAOM et ne peuvent pas être reproduits sans son accord. Pour retrouver notre politique de protection des données personnelles et exercer vos droits conformément à la « loi informatique et liberté » cliquez-ici.