Maison neuve à
Ablis (78660) Référence : JCL2436279_1-3

Prix du projet : Maison avec Terrain

prix 351 800 €

  • 6 pièces
  • 5 chambres
  • Surface maison 141 m2

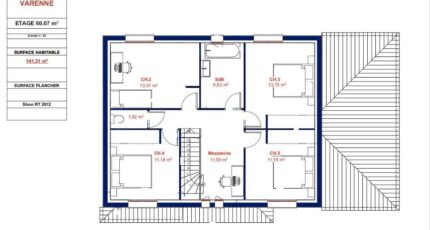
La Varenne est un modèle de maison en R+1 au toit 4 pans. Son parement à l'entrée lui confère un style contemporain. Elle vous offre une surface habitable de 141 m².

Le rez-de-Chaussée de 81 m² est composé d'une entrée desservant un beau salon/séjour de plus de 30 m² avec une cuisine attenante et son cellier. Une suite parentale est également présente avec son dressing et sa salle d'eau, ainsi qu'un WC indépendant. Un accès menant au garage est présent dans le cellier.

L'étage est dédié à l'espace nuit, il se compose de 4 belles chambres et d'une mezzanine. Une salle de bains et un WC indépendant viennent compléter le premier niveau.

Nos modèles sont totalement adaptables à vos envies et vos besoins et personnalisable grâce à de nombreuses options de finition.
N'hésitez plus et venez rencontrer nos équipes !

Annonce proposée par un Agent Commercial Partenaire.

Mentions légales

Terrain proposé par un partenaire foncier selon disponibilités et autorisation de publicité au prix de 92 500 €. Hors droit d'enregistrement et frais de notaire. Terrain + Maison proposés au prix de 351 800 € (Hors branchements et raccordements, papiers peints, peintures, revêtement de sol dans les chambres. Tarif modifiable sans préavis). Etiquette énergie : A. Différents modèles disponibles pour ce terrain. Assurances et garanties du constructeur (RC professionnelle, décennale, dommage ouvrage, garantie de remboursement de l'acompte, livraison à prix et délai convenu) : https://www.maisonsevolution.fr/mentions-legales/.

Contactez l'agence de Coignières

01 34 61 42 52

    * Champs obligatoires

    Vos informations sont traitées par HEXAOM et transmises à un conseiller commercial qui vous contactera afin de répondre à votre demande. Les plans et images présentés sur notre site sont la propriété d’HEXAOM et ne peuvent pas être reproduits sans son accord. Pour retrouver notre politique de protection des données personnelles et exercer vos droits conformément à la « loi informatique et liberté » cliquez-ici.