Maison neuve à
Ablis (78660) Référence : RC2435869_3

Prix du projet : Maison avec Terrain

prix 370 915 €

  • 6 pièces
  • 5 chambres
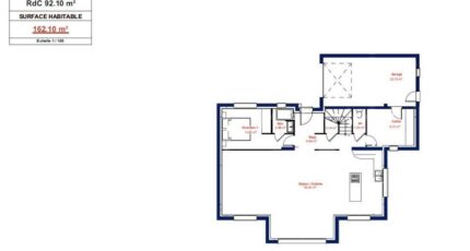
  • Surface maison 162 m2

Le modèle Cluny est une maison en R+1 au toit 2 pans. Ses baies vitrées dans la pièce de vie donnant sur jardin en font une maison lumineuse et agréable à vivre. Sa surface habitable est de 162 m².

Le vaste rez-de-chaussée de 92 m² se compose d'un dégagement menant à un séjour/cuisine confortable de 58 m², une première chambre, une salle d'eau et un WC indépendant. L'accès au garage se fait par le cellier attenant au séjour.

L'étage est consacré à l'espace nuit, puisqu'il est composé de 3 chambres et d'une suite parentale. Toutes les chambres ont accès à une salle de bains, une salle d'eau et un WC indépendant.

Annonce proposée par un Agent Commercial Partenaire.

Mentions légales

Terrain proposé par un partenaire foncier selon disponibilités et autorisation de publicité au prix de 91 880 €. Hors droit d'enregistrement et frais de notaire. Terrain + Maison proposés au prix de 370 915 € (Hors branchements et raccordements, papiers peints, peintures, revêtement de sol dans les chambres. Tarif modifiable sans préavis). Etiquette énergie : A. Différents modèles disponibles pour ce terrain. Assurances et garanties du constructeur (RC professionnelle, décennale, dommage ouvrage, garantie de remboursement de l'acompte, livraison à prix et délai convenu) : https://www.maisonsevolution.fr/mentions-legales/.

Contactez l'agence de Coignières

01 34 61 42 52

    * Champs obligatoires

    Vos informations sont traitées par HEXAOM et transmises à un conseiller commercial qui vous contactera afin de répondre à votre demande. Les plans et images présentés sur notre site sont la propriété d’HEXAOM et ne peuvent pas être reproduits sans son accord. Pour retrouver notre politique de protection des données personnelles et exercer vos droits conformément à la « loi informatique et liberté » cliquez-ici.