Maison neuve à
Ablis (78660) Référence : RC2435869_2

Prix du projet : Maison avec Terrain

prix 278 366 €

  • 4 pièces
  • 4 chambres
  • Surface maison 100 m2

Maisons Evolution vous propose de faire construire le modèle Argentine, sur ce terrain sélectionné avec notre partenaire foncier.
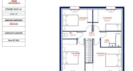
Argentine est une maison R+1 de 100 m².

Ce modèle vous offre un rez-de-chaussée aéré, avec, dès l'entrée, une vision d'ensemble. Il se compose d'une cuisine avec verrière, d'un salon/séjour, d'un cellier et de toilettes indépendants.
Un accès à la maison est possible depuis le garage.

Trois, voir quatre, chambres, une salle de bain et un cabinet de toilettes vous attendent à l'étage.

Annonce proposée par un Agent Commercial Partenaire.

Mentions légales

Terrain proposé par un partenaire foncier selon disponibilités et autorisation de publicité au prix de 91 880 €. Hors droit d'enregistrement et frais de notaire. Terrain + Maison proposés au prix de 278 366 € (Hors branchements et raccordements, papiers peints, peintures, revêtement de sol dans les chambres. Tarif modifiable sans préavis). Etiquette énergie : A. Différents modèles disponibles pour ce terrain. Assurances et garanties du constructeur (RC professionnelle, décennale, dommage ouvrage, garantie de remboursement de l'acompte, livraison à prix et délai convenu) : https://www.maisonsevolution.fr/mentions-legales/.

Contactez l'agence de Coignières

01 34 61 42 52

    * Champs obligatoires

    Vos informations sont traitées par HEXAOM et transmises à un conseiller commercial qui vous contactera afin de répondre à votre demande. Les plans et images présentés sur notre site sont la propriété d’HEXAOM et ne peuvent pas être reproduits sans son accord. Pour retrouver notre politique de protection des données personnelles et exercer vos droits conformément à la « loi informatique et liberté » cliquez-ici.